F TYPE(3LDK)角部屋&最上階フロア
  • 最上階・角部屋
  • 即入居可能(※諸手続き完了後)
  • 平置き駐車場2台目優先権付
ARRANGE A VIEWING

見学会 予約受付中完全予約制

ご予約は予約フォームより
受付しております。

Ftype 最終1邸
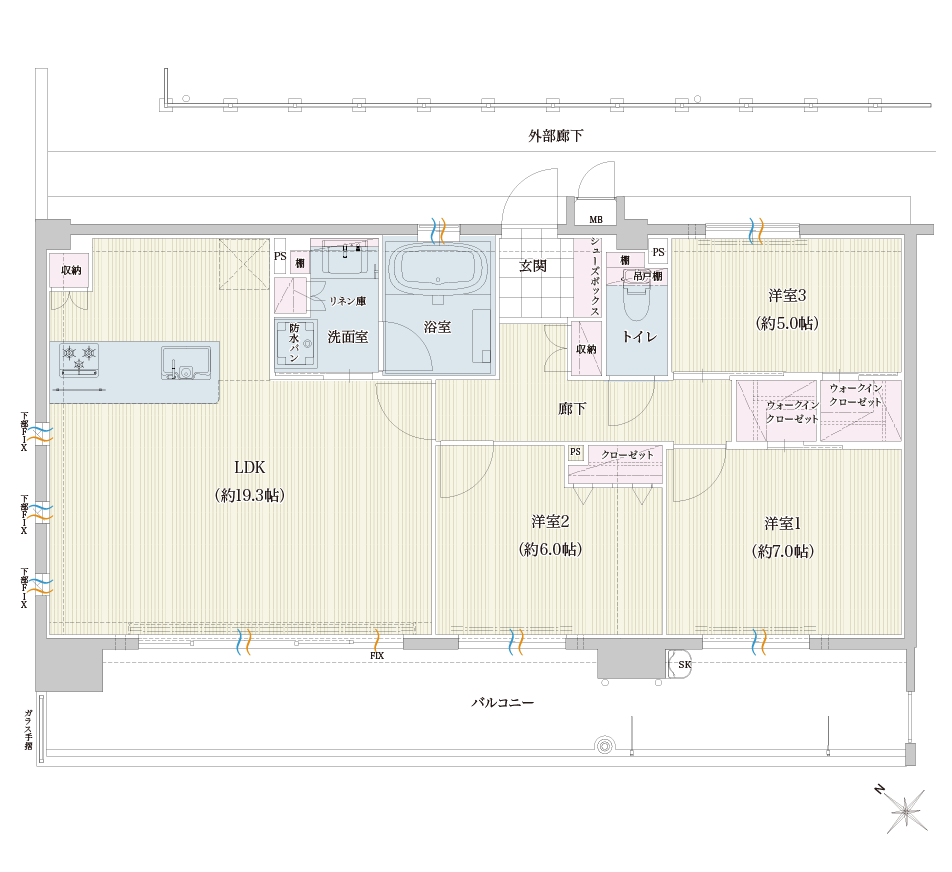
3LDK + 2W.I.C(6F)
専有面積
83.47㎡(25.24坪)
  • バルコニー面積
    23.85㎡(7.21坪)
  • 合計面積
    112.94㎡(34.16坪)

最上階角部屋3LDKプラン。
LDK・各居室・お風呂すべてがゆとりあるサイズ。
バルコニーは13m超えのワイドスパン設計!

通風採光

PREMIUM FLOOR 最上階プレミアムフロア

上階からの生活音もなく、
最上階の開放感を楽しむ

※自転車については分速約290mでの移動を想定しています。
※掲載の絵図は電子国土基本図(オルソ画像)【出典:国土地理院(https://maps.gsi.go.jp/)より】を編集・加工して作成したものです。

物件に関する
お問い合わせはこちらまで

0120-408-950

営業時間/10:00〜19:00 
定休日/火・水曜日(祝日を除く)